ABOUT
關於弄木
WORKS
作品欣賞
SERVICE
服務流程
NEWS
最新消息
CONTACT
連絡我們
CONSULT
諮詢表單
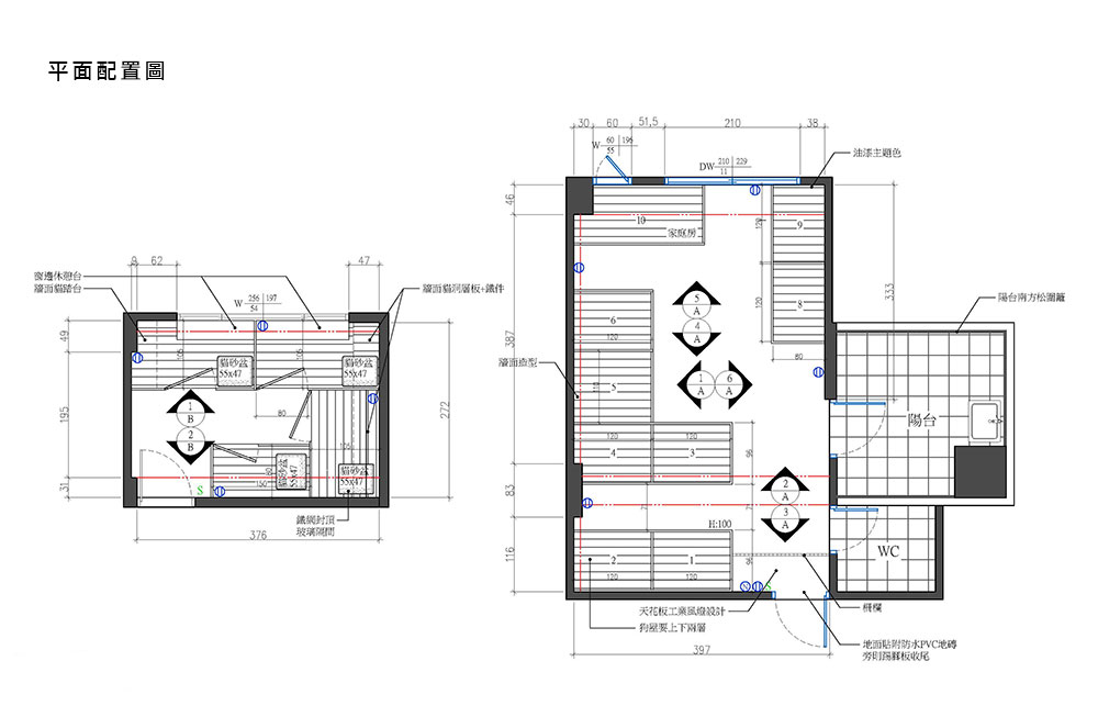
Pet Hotel 寵物旅館
PHOTOS
BACK